Los módulos sanitarios portátiles se han convertido en una solución indispensable para una amplia gama de necesidades, desde obras de construcción hasta eventos al aire libre. Karmod, una marca reconocida en el sector, ofrece una variedad de opciones en módulos sanitarios portátiles, asegurando que cada cliente encuentre la solución adecuada para sus requerimientos.

Los baños portátiles son una solución eficiente y práctica para proporcionar instalaciones sanitarias en ubicaciones temporales o permanentes. Estos módulos son fáciles de transportar e instalar, lo que los hace ideales para cualquier situación que requiera aseos temporales. En la venta de sanitarios, Karmod se destaca por ofrecer productos de alta calidad y durabilidad.

Las casetas de obra con baño y las casetas baño prefabricado son especialmente útiles en proyectos de construcción. Estas casetas sanitarias proporcionan comodidad y funcionalidad a los trabajadores, contribuyendo a un entorno laboral más saludable. El precio de las casetas de obra con baño puede variar según las especificaciones y el tamaño, pero Karmod ofrece opciones competitivas y adaptadas a diferentes presupuestos.

Los contenedores de obra con baño son otra opción popular, ofreciendo una estructura robusta y duradera. Estas casetas de obra sanitarias son fáciles de mantener y proporcionan una solución higiénica en sitios de construcción. Las casetas wc para obra y los lavabos portátiles para obras son componentes esenciales que Karmod proporciona, asegurando que cada sitio de trabajo esté bien equipado.

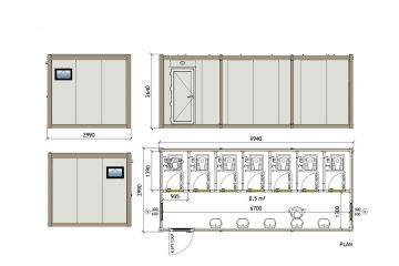
Especificaciones del contenedor Detalles técnicos del contenedor

Los aseos modulares y los baños prefabricados son ideales no solo para obras, sino también para eventos y situaciones de emergencia. Los sanitarios modulares ofrecen flexibilidad y pueden ser personalizados según las necesidades específicas del cliente. Los baños con ducha, por ejemplo, son perfectos para campamentos o eventos que requieren instalaciones completas.

La venta de módulos sanitarios portátiles y los precios de baños portátiles de Karmod son competitivos, proporcionando una excelente relación calidad-precio. Las casetas de obra con baño en venta y las casetas baño prefabricado para obras están diseñadas para soportar el uso intensivo y las condiciones adversas.

Karmod también se destaca como proveedores de casetas sanitarias, ofreciendo soluciones integrales para cualquier proyecto. Comprar una caseta de obra con baño con Karmod garantiza productos de alta calidad y servicio confiable. Además, las casetas sanitarias móviles son una solución perfecta para proyectos temporales o en movimiento.

En resumen, los módulos sanitarios portátiles de Karmod ofrecen una solución práctica, higiénica y económica para una variedad de necesidades. Ya sea para construcción, eventos, campamentos o emergencias, Karmod tiene la solución adecuada en baños portátiles y sanitarios modulares. Con una amplia gama de productos y precios competitivos, Karmod asegura que cada cliente encuentre exactamente lo que necesita para sus proyectos.

Venta de Módulos Sanitarios Portátiles

La venta de módulos sanitarios portátiles se ha convertido en una necesidad creciente para una variedad de industrias, desde la construcción hasta la organización de eventos. Karmod, reconocido por su calidad y confiabilidad, ofrece una amplia gama de módulos sanitarios portátiles diseñados para satisfacer las necesidades más exigentes. Estos módulos sanitarios son ideales para proyectos temporales y permanentes, proporcionando una solución higiénica y cómoda.

Los módulos sanitarios portátiles de Karmod incluyen una variedad de opciones como casetas de obra con baño, casetas baño prefabricado y contenedores de obra con baño. Estas soluciones son perfectas para sitios de construcción donde la necesidad de instalaciones sanitarias es esencial. Las casetas de obra con baño son fáciles de instalar y mantener, asegurando un entorno de trabajo más saludable para los empleados. Además, Karmod ofrece precios competitivos para casetas de obra con baño, asegurando que los clientes obtengan el mejor valor por su inversión.

En la venta de sanitarios, Karmod también se destaca por la calidad de sus casetas sanitarias. Estas casetas están diseñadas para ser duraderas y resistentes, soportando condiciones adversas y uso intensivo. Los proveedores de casetas sanitarias como Karmod aseguran que cada módulo esté equipado con todas las comodidades necesarias, incluyendo lavabos portátiles para obras y aseos modulares.

Baños Portátiles: Amplia Gama para Eventos y Obras

Los baños portátiles son una solución indispensable para eventos y obras, proporcionando instalaciones sanitarias temporales de alta calidad. Karmod ofrece una amplia gama de baños portátiles que se adaptan a diferentes necesidades y presupuestos. Ya sea para un evento al aire libre, un campamento o una obra de construcción, los baños portátiles de Karmod garantizan higiene y comodidad.

Los baños prefabricados y los aseos modulares de Karmod son conocidos por su durabilidad y diseño funcional. Los sanitarios modulares están disponibles en varios modelos, desde baños con ducha hasta casetas de obra con baño en venta. Estos baños portátiles son fáciles de instalar y transportar, haciendo que la logística de cualquier proyecto sea más sencilla.

Karmod ofrece baños portátiles ecológicos, que son una opción sostenible y respetuosa con el medio ambiente. Estos sanitarios portátiles para emergencias y eventos están diseñados para minimizar el impacto ambiental mientras proporcionan una solución sanitaria efectiva. Los precios de baños portátiles de Karmod son competitivos, asegurando que los clientes obtengan una excelente relación calidad-precio.

Para aquellos que buscan lujo y comodidad, Karmod también ofrece baños portátiles de lujo. Estos módulos sanitarios están equipados con todas las comodidades modernas, haciendo que cualquier evento o proyecto sea más cómodo para los usuarios. Comprar una caseta de obra con baño o alquilar una caseta sanitaria para proyectos es sencillo con Karmod, que proporciona soluciones completas y personalizadas.

Caseta Baño Prefabricado

Las casetas baño prefabricado se han convertido en una solución esencial para diversos proyectos, desde obras de construcción hasta eventos temporales. Karmod, una marca reconocida en la industria de módulos sanitarios, ofrece casetas sanitarias de alta calidad, diseñadas para satisfacer las necesidades específicas de cada cliente. Estas casetas son una excelente opción para quienes buscan una instalación rápida, eficiente y económica.

Las casetas de obra con baño están diseñadas para proporcionar comodidad y funcionalidad en sitios de construcción. Karmod asegura que cada caseta de obra con baño esté equipada con todo lo necesario para mantener un ambiente higiénico y confortable para los trabajadores. Además, las casetas baño prefabricado son fáciles de transportar e instalar, lo que las convierte en una opción práctica para proyectos temporales o de larga duración.

El precio de las casetas de obra con baño puede variar dependiendo de las especificaciones y el tamaño, pero Karmod ofrece opciones competitivas y adaptadas a diferentes presupuestos. La venta de módulos sanitarios portátiles de Karmod incluye una variedad de modelos que se pueden personalizar según las necesidades del cliente. Los proveedores de casetas sanitarias como Karmod aseguran la calidad y durabilidad de cada unidad, garantizando una inversión segura y eficiente.

  • Durabilidad y resistencia: Las casetas baño prefabricado están construidas con materiales de alta calidad que garantizan su durabilidad y resistencia a condiciones adversas.
  • Fácil instalación: Estas casetas sanitarias son fáciles de transportar e instalar, lo que las hace ideales para proyectos temporales.
  • Opciones personalizables: Karmod ofrece una variedad de modelos y opciones de personalización para adaptarse a las necesidades específicas de cada cliente.
  • Eficiencia de costos: Las casetas de obra con baño precio son competitivos, asegurando una excelente relación calidad-precio.

Contenedores de Obra con Baño

Los contenedores de obra con baño son una solución eficiente y práctica para proyectos de construcción que requieren instalaciones sanitarias de alta calidad. Karmod, con su vasta experiencia en la venta de sanitarios y módulos sanitarios portátiles, ofrece contenedores de obra con baño diseñados para satisfacer las demandas más exigentes de cualquier sitio de trabajo.

Estos contenedores sanitarios para obras están equipados con todas las comodidades necesarias, incluyendo aseos modulares y lavabos portátiles para obras. La caseta WC para obra es esencial para mantener la higiene y la comodidad de los trabajadores, mejorando así las condiciones laborales y la productividad.

Los baños prefabricados para obra son una opción ideal para aquellos que buscan soluciones rápidas y eficientes. Karmod proporciona soluciones sanitarias para obras que se adaptan a diferentes presupuestos y requisitos. Comprar una caseta obra con baño con Karmod garantiza productos de alta calidad y servicio confiable, asegurando que cada proyecto tenga el mejor soporte sanitario posible.

Los contenedores de obra con baño de Karmod son robustos y duraderos, capaces de soportar las condiciones más exigentes en cualquier sitio de construcción. Estos módulos sanitarios portátiles ofrecen una solución higiénica y práctica, ideal para proyectos de corta y larga duración. Los precios de baños portátiles son competitivos, y Karmod asegura que cada cliente obtenga el mejor valor por su inversión.

  • Construcción robusta: Los contenedores de obra con baño están diseñados para ser duraderos y resistentes, capaces de soportar condiciones adversas en cualquier sitio de construcción.
  • Facilidad de mantenimiento: Estos contenedores sanitarios son fáciles de limpiar y mantener, asegurando un entorno higiénico para los trabajadores.
  • Flexibilidad y movilidad: Los módulos sanitarios portátiles pueden ser trasladados fácilmente de un lugar a otro, ofreciendo flexibilidad para proyectos en movimiento.
  • Equipamiento completo: Los contenedores de obra con baño vienen equipados con todas las comodidades necesarias, incluyendo aseos modulares y lavabos portátiles para obras.

Precios Competitivos en Baños Portátiles y Módulos Sanitarios

Encontrar baños portátiles y módulos sanitarios de alta calidad a precios competitivos es esencial para cualquier proyecto de construcción o evento. Karmod, un líder en la venta de sanitarios y módulos sanitarios portátiles, ofrece una amplia gama de productos diseñados para satisfacer diversas necesidades y presupuestos. Los precios de baños portátiles de Karmod son altamente competitivos, garantizando que cada cliente obtenga el mejor valor por su inversión.

Los módulos sanitarios de Karmod están diseñados para ser duraderos, funcionales y fáciles de mantener. Estos módulos incluyen casetas de obra con baño, caseta baño prefabricado y caseta sanitaria, todos ellos disponibles en varias configuraciones para adaptarse a diferentes requerimientos. La caseta de obra con baño precio varía según el tamaño y las características específicas, pero siempre manteniendo una excelente relación calidad-precio.

La venta de módulos sanitarios portátiles también incluye soluciones para eventos y situaciones temporales. Los baños portátiles de Karmod están diseñados para ser fácilmente transportables e instalables, proporcionando una solución higiénica y cómoda para cualquier ocasión. Los precios de baños portátiles reflejan la calidad y durabilidad de estos productos, asegurando que los clientes obtengan una solución confiable y económica.

  • Variedad de opciones: Karmod ofrece una amplia gama de módulos sanitarios y baños portátiles para satisfacer cualquier necesidad.
  • Alta calidad: Todos los productos están diseñados para ser duraderos y fáciles de mantener, asegurando una larga vida útil.
  • Precios competitivos: Los precios de baños portátiles y módulos sanitarios de Karmod son altamente competitivos, ofreciendo una excelente relación calidad-precio.
  • Fácil instalación: Los módulos sanitarios portátiles y los baños portátiles de Karmod son fáciles de transportar e instalar, proporcionando una solución rápida y eficiente.

Casetas de Obra con Baño en Venta

Las casetas de obra con baño en venta de Karmod son la solución perfecta para cualquier proyecto de construcción que requiera instalaciones sanitarias de alta calidad. Estas casetas están diseñadas para proporcionar comodidad y funcionalidad, asegurando un entorno de trabajo higiénico y confortable para los trabajadores. Karmod, como proveedores de casetas sanitarias, ofrece productos que cumplen con los más altos estándares de calidad y durabilidad.

Las casetas de obra sanitarias de Karmod están equipadas con todo lo necesario para mantener la higiene y la comodidad en el sitio de trabajo. Estas casetas incluyen caseta WC para obra, lavabos portátiles para obras y aseos modulares, todos diseñados para ser fáciles de instalar y mantener. La venta de módulos sanitarios portátiles incluye una variedad de opciones que se pueden personalizar según las necesidades específicas del cliente.

Los precios de las casetas de obra con baño son competitivos, y Karmod asegura que cada cliente obtenga el mejor valor por su inversión. Comprar una caseta obra con baño con Karmod garantiza productos de alta calidad y servicio confiable. Además, Karmod ofrece alquiler de casetas de obra con baño para aquellos proyectos que requieren soluciones temporales.

  • Alta calidad y durabilidad: Las casetas de obra con baño de Karmod están construidas con materiales de alta calidad que garantizan su durabilidad y resistencia.
  • Variedad de opciones: Karmod ofrece una variedad de casetas sanitarias y módulos sanitarios portátiles para adaptarse a diferentes necesidades y presupuestos.
  • Fácil instalación y mantenimiento: Las casetas de obra con baño son fáciles de transportar, instalar y mantener, proporcionando una solución higiénica y cómoda para los trabajadores.
  • Precios competitivos: Los precios de las casetas de obra con baño son altamente competitivos, asegurando una excelente relación calidad-precio para los clientes.

Aseos Modulares para Construcción: Diseños Personalizables

Los aseos modulares para construcción se han convertido en una solución indispensable para mantener la higiene y la comodidad en los sitios de trabajo. Karmod, líder en la industria de módulos sanitarios, ofrece una amplia gama de aseos modulares que pueden ser personalizados según las necesidades específicas de cada proyecto. Estos módulos sanitarios son esenciales para asegurar un ambiente laboral saludable y eficiente.

Los módulos sanitarios portátiles de Karmod están diseñados para ser duraderos y fáciles de mantener. La flexibilidad en el diseño permite que estos aseos modulares se adapten a cualquier tipo de obra, proporcionando las comodidades necesarias para los trabajadores. Las casetas de obra con baño y los contenedores de obra con baño son algunas de las opciones disponibles que Karmod ofrece para mejorar la calidad de vida en el lugar de trabajo.

La caseta de obra con baño precio varía según las especificaciones y el tamaño, pero Karmod asegura precios competitivos y una excelente relación calidad-precio. La venta de sanitarios de Karmod incluye casetas baño prefabricado, caseta sanitaria y aseos modulares, todos diseñados para satisfacer las más altas exigencias de calidad y funcionalidad.

  • Diseño personalizado: Los aseos modulares de Karmod pueden ser personalizados para adaptarse a las necesidades específicas de cada proyecto.
  • Durabilidad y resistencia: Fabricados con materiales de alta calidad, estos módulos sanitarios son duraderos y resistentes a las condiciones adversas.
  • Fácil instalación y mantenimiento: Los aseos modulares son fáciles de instalar y mantener, proporcionando una solución práctica y eficiente.
  • Opciones variadas: Karmod ofrece una variedad de modelos, incluyendo casetas de obra con baño, caseta WC para obra y lavabos portátiles para obras.

Sanitarios Modulares en Venta

Karmod se destaca en la venta de sanitarios modulares, ofreciendo soluciones de alta calidad y precios competitivos. Los sanitarios modulares son una excelente opción para proyectos de construcción, eventos y cualquier situación que requiera instalaciones sanitarias temporales o permanentes. Estos módulos sanitarios están diseñados para ser prácticos y funcionales, asegurando un entorno higiénico y cómodo.

Los baños prefabricados para obra y los módulos sanitarios portátiles son fáciles de transportar e instalar, lo que los hace ideales para cualquier proyecto. La venta de módulos sanitarios portátiles de Karmod incluye una variedad de opciones que se pueden adaptar a las necesidades específicas de los clientes. Los precios de baños portátiles son competitivos, garantizando que los clientes obtengan una solución rentable y de alta calidad.

Karmod también ofrece soluciones sanitarias para obras, incluyendo casetas de obra con baño en venta y baños modulares para eventos. Estos módulos están equipados con todas las comodidades necesarias, asegurando que los usuarios tengan una experiencia satisfactoria. Comprar una caseta obra con baño con Karmod asegura productos de alta calidad y un servicio confiable.

  • Alta calidad: Los sanitarios modulares de Karmod están diseñados con materiales de primera calidad para garantizar su durabilidad y resistencia.
  • Precios competitivos: Los precios de baños portátiles y módulos sanitarios son competitivos, asegurando una excelente relación calidad-precio.
  • Variedad de opciones: Karmod ofrece una amplia gama de sanitarios modulares, incluyendo casetas de obra sanitarias, contenedores de obra con baño y baños portátiles para campamentos.
  • Fácil transporte e instalación: Los módulos sanitarios son fáciles de transportar e instalar, proporcionando una solución práctica y eficiente para cualquier proyecto.

Baños Modulares para Eventos

Los baños modulares para eventos se han convertido en una solución esencial para garantizar la comodidad y la higiene en cualquier tipo de evento, ya sea al aire libre o en interiores. Karmod, líder en la fabricación y venta de módulos sanitarios, ofrece una amplia gama de baños portátiles diseñados para satisfacer las necesidades específicas de cualquier evento. Los módulos sanitarios portátiles de Karmod son reconocidos por su calidad, durabilidad y facilidad de instalación.

Los módulos sanitarios son perfectos para eventos grandes como conciertos, festivales, bodas y ferias, proporcionando a los asistentes un espacio limpio y cómodo. Estos baños portátiles son fáciles de transportar y montar, lo que permite una instalación rápida y eficiente en cualquier lugar. La venta de sanitarios de Karmod incluye opciones como caseta baño prefabricado, caseta sanitaria y aseos modulares, todos diseñados para ofrecer la mejor experiencia posible.

El precio de los baños portátiles puede variar según el modelo y las características, pero Karmod garantiza precios competitivos y una excelente relación calidad-precio. Los proveedores de casetas sanitarias como Karmod aseguran que cada unidad esté equipada con todo lo necesario para satisfacer las necesidades sanitarias de los asistentes a cualquier evento.

  • Variedad de modelos: Karmod ofrece una amplia gama de módulos sanitarios, desde baños con ducha hasta casetas WC para obra, adaptándose a diferentes necesidades y presupuestos.
  • Alta calidad: Los baños modulares para eventos están construidos con materiales de alta calidad que garantizan su durabilidad y resistencia.
  • Fácil instalación: Estos módulos sanitarios portátiles son fáciles de montar y desmontar, lo que facilita su transporte y almacenamiento.
  • Precios competitivos: Karmod ofrece precios de baños portátiles que aseguran una excelente relación calidad-precio.

Alquiler de Casetas de Obra con Baño

El alquiler de casetas de obra con baño es una opción práctica y económica para proyectos de construcción temporales. Karmod, con su vasta experiencia en el sector de módulos sanitarios, proporciona casetas de obra con baño de alta calidad que cumplen con las exigencias de cualquier sitio de construcción. Estas casetas son esenciales para mantener un entorno de trabajo higiénico y cómodo para los trabajadores.

Las casetas de obra con baño de Karmod están diseñadas para ser duraderas y fáciles de mantener, asegurando que los trabajadores tengan acceso a instalaciones sanitarias adecuadas en todo momento. Los contenedores de obra con baño y las casetas WC para obra son algunas de las opciones disponibles que Karmod ofrece para mejorar las condiciones de trabajo en los sitios de construcción.

El precio del alquiler de casetas de obra con baño es competitivo, ofreciendo una solución rentable para proyectos de construcción de cualquier tamaño. La venta de módulos sanitarios portátiles de Karmod incluye una variedad de modelos que se pueden personalizar según las necesidades específicas del cliente.

  • Alta calidad y durabilidad: Las casetas de obra con baño de Karmod están construidas con materiales de alta calidad que garantizan su durabilidad y resistencia.
  • Fácil instalación y mantenimiento: Estas casetas sanitarias son fáciles de montar y mantener, proporcionando una solución higiénica y cómoda para los trabajadores.
  • Variedad de opciones: Karmod ofrece una amplia gama de casetas de obra sanitarias, contenedores de obra con baño y lavabos portátiles para obras.
  • Precios competitivos: El precio del alquiler de casetas de obra con baño es competitivo, asegurando una excelente relación calidad-precio para los clientes.

Los baños modulares para eventos y el alquiler de casetas de obra con baño de Karmod ofrecen soluciones sanitarias prácticas, higiénicas y económicas para una variedad de necesidades. Con su amplia gama de productos y precios competitivos, Karmod asegura que cada cliente encuentre la solución perfecta para sus proyectos y eventos.

Modulos Sanitarios Portatiles Preguntas frecuentes